GDC-J電磁高真空擋板閥



GDC-J型電磁高真空擋板閥概述
GDC-J型電磁高真空擋板閥是以電磁力為動力直接帶動閥板動作,使閥門開啟或關閉。適用于真空系統中,用來切斷或導通氣流。適用介質為純凈空氣和非腐蝕性氣體。帶反饋信號。
GDC-J Electro High Vacuum Flapper Valve
GDC-JQelectro high vacuum butterfly valve uses electromagnetic force to directly drive valve disc working. thus to make valve opened ro closed. It is applicable for vacuum system to cut off or put through the airflow. When valve is closed. and there is atmospheric pressure above the sealing face and vacuum below the sealing face, here the sealing effect is the best. Applicable medium can be pure air and noncorrosive gases.
GDC-J型電磁高真空擋板閥主要技術性能
Main Technical Performance
| 適用范圍:Applicability | 105~1.3×10-4Pa |
| 閥門漏率:Valve Leak Rate | ≤1.3×10-4Pa.L/S. |
| 適用溫度:Applicability | -30~+50℃ |
| 線圍溫升:Coil Temperature Rise | ≤65℃ |
| 開閉時間:Open-close Time | ≤5S |
| 電源電壓:Mains Voltage | 220V/50Hz |
| 安裝方向:Mounting Direction | 任意(可反頂一個大氣壓) |
主要零件材料
Materials of Main Parts
閥體、閥板:碳鋼或不銹鋼
密封件:丁腈橡膠、氟橡膠、波紋管(軸封)。
Body, and disc: carbon steel or stainless steel
Sealing element: NBR, Viton, bellows(shaft seal)
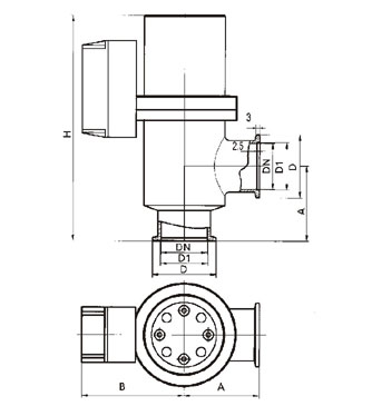
外形及連接尺寸(mm)
Overall and Connection Dimensions(mm)
|
Model
型號 |
DN
|
D1
|
D
|
A
|
B
|
H
|
|
GDC-J16(b)
|
16
|
17.2
|
30
|
40
|
55
|
193
|
|
GDC-J25(b)
|
25
|
26.2
|
40
|
50
|
60
|
203
|
|
GDC-J32(b)
|
32
|
34.2
|
55
|
58
|
70
|
237
|
|
GDC-J40(b)
|
40
|
41.2
|
55
|
65
|
70
|
244
|



