YGa43H高靈敏度大流量蒸汽減壓閥



高靈敏度大流量蒸汽減壓閥
高靈敏度大流量蒸汽減壓閥結構特點和用處
減壓閥屬于先導活塞式減壓閥。由主閥和導閥兩部分組成。主閥主要由閥座、主閥盤、活塞、彈簧等零件組成。導閥主要由閥座、閥瓣、膜片、彈簧、調節彈簧等零件組成。本產品在普通減壓閥基礎上作了很大改進,加大了活塞面積,改變了節流結構。改變了密封形式,加大了過流面積等等,從而在提高靈敏度、流量、壽命等方面大大改善了性能。 高靈敏度大流量蒸汽減壓閥主要用于蒸汽管路,適用于流量大流量變化大,進口壓力變化大的蒸汽管路。
| 蒸汽減壓閥型號:YGA43H | 蒸汽減壓閥公稱通徑:15MM-500MM | 蒸汽減壓閥 使用壓力:1.6MPA-16MPA |
| 蒸汽減壓閥 連接方式:法蘭連接 | 蒸汽減壓閥 形式:彈簧式 | 蒸汽減壓閥 主要功能:起減壓保護作用 |
| 蒸汽減壓閥 使用介質:蒸汽管道 | 蒸汽減壓閥材質:鑄鋼.不銹鋼 | 蒸汽減壓閥標準:機械部標準或定做非標 |
高靈敏度大流量蒸汽減壓閥主要技術參數和性能指標
|
公稱壓力 |
1.6 |
2.5 |
4.0 |
6.4 |
10.0 |
16.0 |
|
殼體試驗壓力(Mpa)* |
2.4 |
3.75 |
6.0 |
9.6 |
15.0 |
24 |
|
密封試驗壓力(Mpa) |
1.6 |
2.5 |
4.0 |
6.4 |
10.0 |
16.0 |
|
最高進口壓力(Mpa) |
1.6 |
2.5 |
4.0 |
6.4 |
10.0 |
16.0 |
|
出口壓力范圍(Mpa) |
0.04-1.0 |
0.05-1.6 |
0.08-2.5 |
0.2-3.5 |
0.5-3.5 |
0.5-4.5 |
|
壓力特性偏差(Mpa)△P2P |
GB12246-1989 |
|||||
|
流量特性偏差(Mpa)P2G |
GB12246-1989 |
|||||
|
最小壓差(Mpa) |
0.07 |
0.1 |
0.15 |
0.4 |
0.5 |
0.8 |
|
滲漏量 |
GB12245-1989 |
|||||
高靈敏度大流量蒸汽減壓閥主要零件材料
|
零件名稱 |
零件材料 |
|
閥體閥蓋底蓋 |
WCB |
|
閥座閥瓣 |
2Cr13 |
|
缸套活塞 |
鋁鐵青銅 |
|
膜片 |
1Cr18Ni9 |
|
活塞環 |
合金鑄鐵/對位聚苯 |
|
導閥座導閥桿 |
2Cr13 |
|
主閥彈簧 |
50CrVA |
|
導閥主彈簧 |
50CrVA |
|
調節彈簧 |
60Si2Mn |
高靈敏度大流量蒸汽減壓閥流量系數
| DN | 50 | 65 | 80 | 100 | 125 | 150 | 200 | 250 | 300 | 350 | 400 | 500 |
| Cv | 1 | 2.5 | 4 | 6.5 | 9 | 16 | 25 | 36 | 64 | 100 | 140 | 250 |
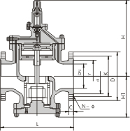
高靈敏度大流量蒸汽減壓閥外形尺寸
(PN1.6-4.0)
| 公稱通徑DN | 外 形 尺 寸 | |||
| L | H | Hl | ||
| 1.6/2.5MPa | 4.0MPa | |||
| 15 | 160 | 180 | 265 | 85 |
| 20 | 160 | 180 | 265 | 85 |
| 25 | 180 | 200 | 280 | 95 |
| 32 | 200 | 220 | 280 | 95 |
| 40 | 220 | 240 | 290 | 105 |
| 50 | 250 | 270 | 300 | 130 |
| 65 | 280 | 300 | 315 | 145 |
| 80 | 310 | 330 | 330 | 170 |
| 100 | 350 | 380 | 405 | 200 |
| 125 | 400 | 450 | 450 | 225 |
| 150 | 450 | 500 | 485 | 265 |
| 200 | 500 | 550 | 570 | 290 |
| 250 | 650 | 640 | 325 | |
| 300 | 800 | 740 | 360 | |
| 350 | 850 | 810 | 395 | |
| 400 | 900 | 950 | 430 | |
| 500 | 950 | 1080 | 500 | |
高靈敏度大流量蒸汽減壓閥外形尺寸
(PN6.4-16.0)
| 公稱通徑DN | 外 形 尺 寸 | |||
| L | H | Hl | ||
| 6.4MPa | 10.0/16.0MPa | |||
| 15 | 180 | 180 | 280 | 100 |
| 20 | 180 | 200 | 280 | 100 |
| 25 | 200 | 220 | 300 | 115 |
| 32 | 220 | 230 | 300 | 115 |
| 40 | 240 | 240 | 315 | 130 |
| 50 | 270 | 300 | 340 | 135 |
| 65 | 300 | 340 | 355 | 150 |
| 80 | 330 | 360 | 370 | 175 |
| 100 | 380 | 450 | 205 | |
| 125 | 450 | 510 | 235 | |
| 150 | 500 | 555 | 275 | |
| 200 | 550 | 640 | 300 | |
| 250 | 650 | 720 | 335 | |
| 300 | 800 | 830 | 375 | |
| 350 | 850 | 880 | 410 | |
| 400 | 900 | 1020 | 445 | |
| 500 | 950 | 1080 | 515 | |
減壓閥調壓步驟
1、關閉減壓閥前的閘閥,開啟減壓閥后的閘閥,制造下游低壓環境將調節螺釘按逆時針旋轉至最上位置(相對最低出口壓力),然后關閉減壓閥后閘閥
2、慢慢開啟減壓閥前的閘閥至全開;
3、順時針慢慢旋轉調節螺釘,將出口壓力調至所需要的壓力(以閥后表壓為準);調整好后,將鎖緊
4、螺母鎖緊打開減壓閥后閘閥
5、如在調整時出口壓力高于設定壓力,須從第一步開始重新調整,即只能從低壓向高壓調。
減壓閥訂貨注意事項:
減壓閥選型時應提供口徑,使用介質,閥前壓力,閥后壓力,閥后設定壓力,最大流量/每小時,確定閥門尺寸,連接方式,標準,最大行程,開啟行程,流量調節比,壓力波動(精度)壓力,溫度對應比,最大耐溫,閥體材質,壓力等,內泄漏率,內部閥體結構,工作原理,安裝說明等相關技術資料.當使用的場合非常重要或環境比較復雜時,請您盡量提供設計圖紙和詳細參數,由我們的 三精閥門 公司專家為您審核把關.感謝您訪問我們的網站【http://m.dashazhu.cn】
| 相關減壓閥系列 | ||||
| 蒸汽減壓閥 | 高靈敏度減壓閥 | 內螺紋高靈敏度減壓閥 | 大流量蒸汽減壓閥 | 水用減壓閥 |
| 內螺紋蒸汽減壓閥 | 200P黃銅減壓閥 | YZ11X黃銅減壓閥 | 25P蒸汽減壓閥 | Y45Y杠桿式減壓閥 |
| 固定比例式減壓閥 | 煤礦專用減壓閥 | 波紋管減壓閥 | 氣體減壓閥 | 不銹鋼支管式減壓閥 |
三精閥門售后服務承諾
對于貴公司在三精閥門訂購閥門產品,我廠在售后服務方面作如下承諾:
一、我公司對產品質量實行三包,即:包質、包換、保修;
二、合同簽訂后,保證保質、保量,按時交貨;
三、本公司確保所提供閥門產品達到合同指標
四、對于需方的技術咨詢,隨時給予解答;
五、在交付設備時,本廠向需方交付以下資料:發貨清單、產品合格證、產品樣本、產品使用說明書、技術資料;
當接到用戶反應質量問題的信函或電話后,保證24小時內作出答復最快解決問題。



